回到首页
效果图
装修资讯
设计报价
找装修公司
建材批发
6
/ 6
当前位置:
首页
»
小区效果图
»
小区效果图
»明珠花园-101平米二居室现代简约效果图 日期:
2015-03-30
点击:
6
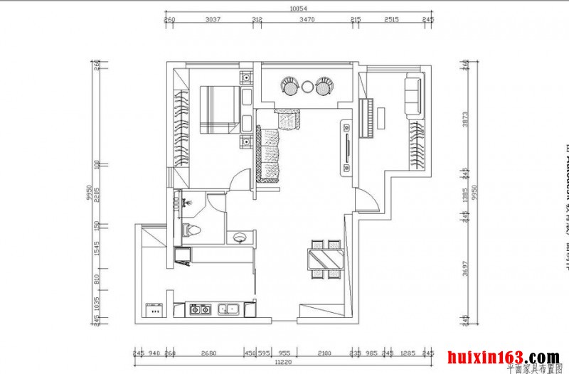
明珠花园-101平米二居室现代简约效果图- 平面图
已是最后一幅
小区效果图说明
卧室的设计给人一种非常舒适现代时尚的感觉,在客厅的顶面上是一圈明亮的灯带,在灯带的周边松散的排列着一些射灯,在顶面中央的位置是一盏圆形的橘黄色的吊灯,搭配深色的实木地板,营造出非常和谐优雅的居室环境。在床头背景墙上采用石膏板设计出一个向墙面内凹陷的简欧风格的拱门,拱门的里面铺贴现代简约的壁纸,带给人非常优雅大气的视觉感受。
更多»
推荐小区效果图
国富芙蓉新城-92平米
天一凤凰雅苑-82平米
金侨城-105平米二居室
新都汇-97平米二居室
大学里-101平米二居室
城郊湘军源-85平米二
共
0
条 [查看全部]
相关评论